art prison
favignana, 2017
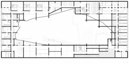
Der Wettbewerb bot den Teilnehmern die Möglichkeit sich angesichts der Lage seines Grundstücks und seinem geforderten Raumprogramms mit den Grundfragen der Architektur auseinanderzusetzen. Immanente Entwurfsmomente beruhten auf der Frage nach Abgeschiedenheit, nach Obdach und dem Diskurs mit einem historisch relevanten Ort.Von Anfang an stand die Suche nach der „einen großen Geste“ im Vordergrund der Entwurfsarbeit. Es galt einen Ort zu entwickeln der sich selbstverständlich, zurückhaltend aber trotzdem selbstbewusst am Fuße der Ruine artikuliert.Ein Ort, der die Atmosphäre der bestehenden Situation versteht und sie mit Hilfe seiner architektonischen Setzung neu interpretiert. Die Lösung war eine eingeschossige Plattform, die alle Punkte des Raumprogramms beherbergt und sich als Sockel für die bestehende Architektur der Festung unterordnet. Unwiederbringlich wird sie Teil des Berges, des Bestands und somit der Geschichte des Ortes.Die Erschließung geschieht ausschließlich über den bestehenden Weg, der gesaümt von Landschaftskunst, bereits Teil der architektonischen Gesamtidee ist und in einer Rampe mündet, die den Besucher in den hermetischen Bau führt.Der Neubau, der in seiner Materialität und seinen Raumbezügen angelehnt ist an ursprüngliche Architekturen, bildet einen archaischen Ort, der seinen Besuchern und Bewohnern, Raum für die Auseinandersetzung mit Kunst und der eigenen Identität bietet. Im Kontrast dazu übersteigert seine Terrasse das Erlebnis des Landschaftsraums der Insel. Das Gebäude versteht sich als strukturelle Ergänzung und als Initiator einer Revitalisierung des Ortes.














art prison
favignana, 2017
Der Wettbewerb bot den Teilnehmern die Möglichkeit sich angesichts der Lage seines Grundstücks und seinem geforderten Raumprogramms mit den Grundfragen der Architektur auseinanderzusetzen. Immanente Entwurfsmomente beruhten auf der Frage nach Abgeschiedenheit, nach Obdach und dem Diskurs mit einem historisch relevanten Ort.Von Anfang an stand die Suche nach der „einen großen Geste“ im Vordergrund der Entwurfsarbeit. Es galt einen Ort zu entwickeln der sich selbstverständlich, zurückhaltend aber trotzdem selbstbewusst am Fuße der Ruine artikuliert.Ein Ort, der die Atmosphäre der bestehenden Situation versteht und sie mit Hilfe seiner architektonischen Setzung neu interpretiert. Die Lösung war eine eingeschossige Plattform, die alle Punkte des Raumprogramms beherbergt und sich als Sockel für die bestehende Architektur der Festung unterordnet. Unwiederbringlich wird sie Teil des Berges, des Bestands und somit der Geschichte des Ortes.Die Erschließung geschieht ausschließlich über den bestehenden Weg, der gesaümt von Landschaftskunst, bereits Teil der architektonischen Gesamtidee ist und in einer Rampe mündet, die den Besucher in den hermetischen Bau führt.Der Neubau, der in seiner Materialität und seinen Raumbezügen angelehnt ist an ursprüngliche Architekturen, bildet einen archaischen Ort, der seinen Besuchern und Bewohnern, Raum für die Auseinandersetzung mit Kunst und der eigenen Identität bietet. Im Kontrast dazu übersteigert seine Terrasse das Erlebnis des Landschaftsraums der Insel. Das Gebäude versteht sich als strukturelle Ergänzung und als Initiator einer Revitalisierung des Ortes.